Passar para o Conteúdo Principal Top

Casa de Arte e Cultura de Vila Verde - Op Leste

Âmbito

Proposta de âmbito geral

Freguesia

Vila Verde

Proponente

Vitor Alemão

Data Submissão:

30-06-2016

A localização do projeto é a mais indicada por se encontrar no centro da freguesia na Rua Sr. da Coluna com a Rua de Sto. Aleixo, propriedade da Junta de Freguesia que cederá o terreno para o efeito. Por outro lado, a proximidade com a Junta de Freguesia e com outros edifícios de carácter público trará melhores condições de oferta de conhecimento e sabedoria, como de funcionalidade.

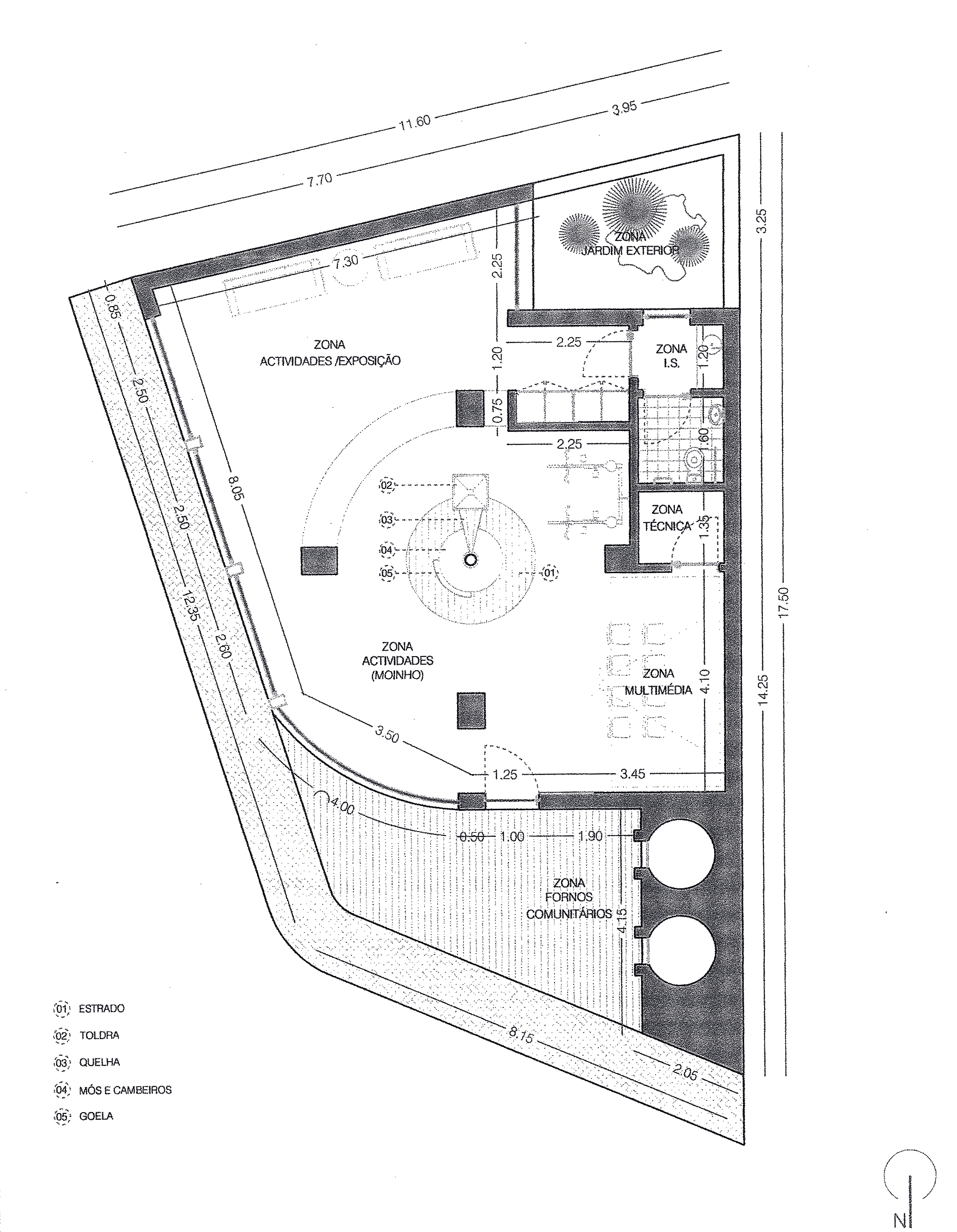
Pretende ser um polo dinamizador da atividade artística desenvolvida na freguesia, conciliando diferentes valências que se encontram ao serviço do movimento associativo e, principalmente, da população. O projeto contempla um átrio de entrada ao ar livre, onde existem dois fornos comunitários, funcionando como um espaço de transição para o interior do edifício. Apresenta grandes vãos envidraçados para que desse modo se possa mostrar o que ali se faz. No interior contempla um hall/átrio/open space que funciona como espaço multifuncional de diversas atividades, sendo de salientar um moinho de moagem de cereais, movido através de energias alternativas, como energia solar e pedal. Existe ainda um espaço multimédia, espaços/zona de atividades, zona técnica, sanitários e um pequeno jardim interior descoberto para aproveitamento da luminosidade e ventilação natural.

Na proximidade existe um complexo escolar onde as crianças poderão vir a utilizar e conhecer melhor a história de Vila Verde. O local é considerado "porta de entrada" de Vila Verde e merece ser valorizado com este tipo de arranjo e equipamento urbanístico.